г Новосибирск, Красный пр-кт, д 2/1
Пн-пт с 09:30 до 18:30, Сб-вс выходной

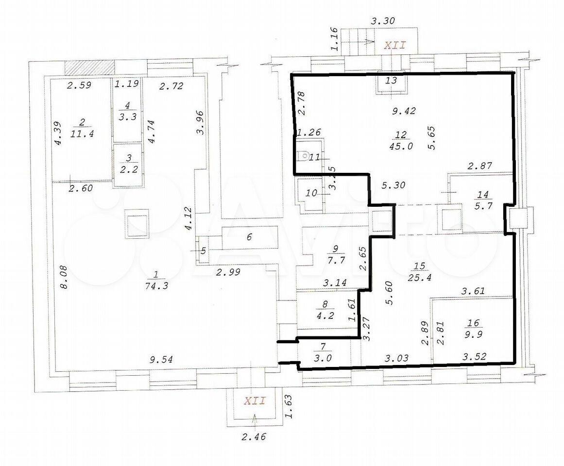
Аренда на Новогодней, 91,7 м² ID: J1628

Новосибирск, Кировский, улица Новогодняя, д.2 Площадь Маркса Ленинская 8 мин.
Площадь 91.7 м²
Этаж 1 из 5
155 000 / месяц
1 690 /м²
Георгий Домнин Георгий Домнин
Старший Брокер по аренде и продаже коммерческой недвижимости
+7(913)769-0907
QR
Ссылка на объект

Описание

Аренда от собственника! Комиссии для арендатора нет!

Этаж: 1
Площадь: 91,7 м²
Вход: отдельный
Высота потолков: 3 м
Электрическая мощность: 13 кВт
Отопление: центральное
Вода: есть
Сан.узел: есть

Стоимость аренды: 155 000 р. + коммунальные услуги

Чтобы получить ПОДРОБНУЮ ИНФОРМАЦИЮ И ПЛАНИРОВКУ С ВИДЕО, звоните или отправьте номер телефона в сообщение на портале. Отвечаем в течении рабочего дня!

Характеристики

  • Тип недвижимости Коммерческая
  • Населенный пункт Новосибирск
  • Район Кировский
  • Адрес улица Новогодняя, д.2
  • Станция метро Площадь Маркса ( 8 мин.)
  • Стоимость заМесяц
  • Общая площадь 91.7 м²
  • Вид объекта Помещение свободного назначения
  • Этаж 1
  • Этажность дома 5
  • Право собственности Собственник
  • Отделка помещения Офисная
  • Тип аренды Прямая
  • Вход С улицы
  • Высота потолков 3
  • Отопление Центральное
  • Тип здания Жилой дом
  • Парковка На улице
  • Мощности 13
  • Тип планировки Открытая
  • Берег Левый
Задать вопрос


Вас также может заинтересовать:
8
Аренда 63 м² под кафе
Новосибирск, улица Ленинградская, д.340
Октябрьский
157 500 / сутки
  • Вид объекта:Помещение свободного назначения
  • Этаж:1
  • Этажность дома:20
7
Аренда 53 м² под товары для животных
Новосибирск, улица Ленинградская, д.340
Октябрьский
132 500 / сутки
  • Вид объекта:Помещение свободного назначения
  • Этаж:1
  • Этажность дома:20
15
Аренда на Первомайской, 160 м²
Новосибирск, улица Первомайская, д.140
Первомайский
120 000 / месяц
  • Вид объекта:Помещение свободного назначения
  • Этаж:2
  • Этажность дома:3

Мы используем файлы cookie, чтобы обеспечить вам наилучший доступ к нашему веб-сайту

Скопировано